SANTI
SANTI
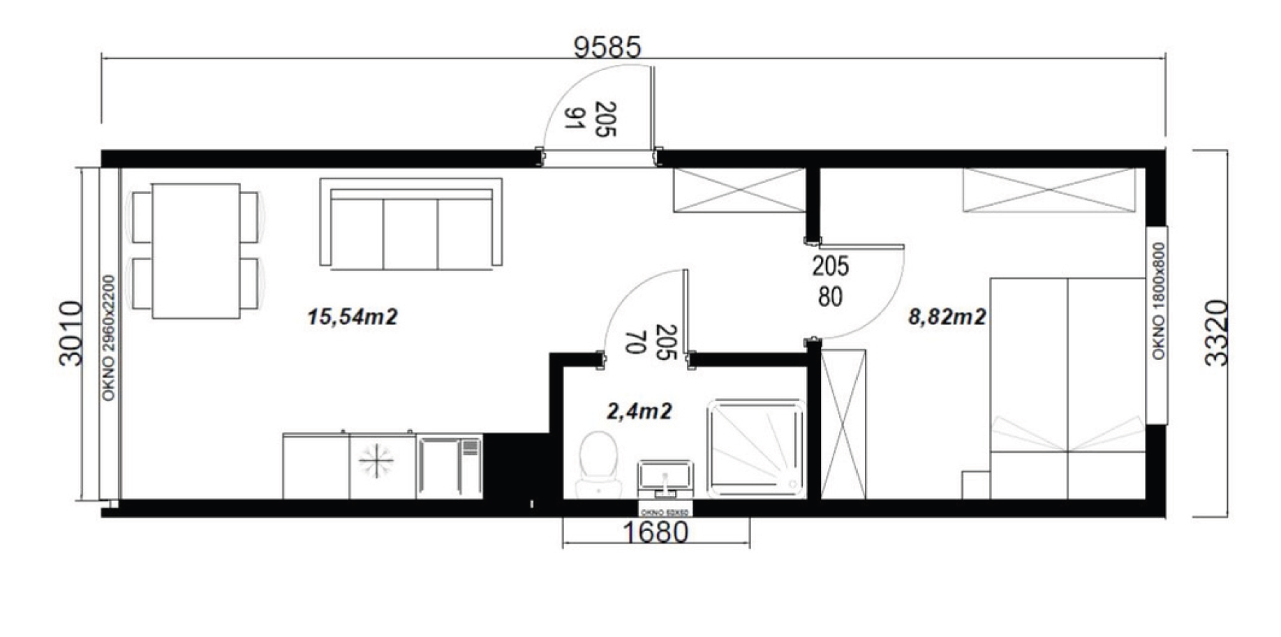
SANTI to kompaktowy dom całoroczny o powierzchni użytkowej 36 m², zaprojektowany z myślą o osobach ceniących minimalizm i funkcjonalność. Budynek ma dwuspadowy dach o kącie nachylenia 32°, powierzchnię parteru 26,76 m² oraz antresolę 9,24 m², która doskonale sprawdzi się jako sypialnia.
Konstrukcja oparta jest na stalowych profilach cynkowanych ogniowo, co zapewnia trwałość i odporność na korozję. Ściany i dach wykonane są z płyt warstwowych wypełnionych pianą PIR o grubości 120 mm, gwarantujących wysoką izolacyjność cieplną i akustyczną. Trójszybowe okna w systemie 7-komorowym zapewniają niski współczynnik przenikania ciepła (Uw nawet 0,76 W/m²K) oraz skutecznie chronią przed hałasem.
Czas budowy wynosi około 20 tygodni, a system płatności etapowych zapewnia elastyczność inwestycji. SANTI to nowoczesny i praktyczny dom, który łączy prostotę formy z komfortem codziennego użytkowania.
Ilość pokoi: 1+salon z kuchnią
Ilość łazienek: 1
Ilości pięter: 1
Czas budowy nawet 3 miesiące.
Dlaczego SANTI?
- SANTI to nowoczesny dom całoroczny o kompaktowej, dobrze zaprojektowanej przestrzeni
- wyróżnia się prostą, minimalistyczną bryłą z dachem dwuspadowym (32°)
- zaprojektowany z myślą o maksymalnym wykorzystaniu niewielkiego metrażu
- funkcjonalny układ z antresolą pozwala na wyraźny podział strefy dziennej i prywatnej
- wykonany w technologii stalowej, zapewniającej trwałość i odporność na lata
- bardzo dobra izolacja dzięki płytom warstwowym 120 mm (ściany i dach)
- duże przeszklenia zapewniają dobre doświetlenie i optyczne powiększenie wnętrza
- idealny dla singla, pary lub jako inwestycja pod wynajem
- nowoczesny design dopasowany do aktualnych trendów architektonicznych
- możliwość indywidualnej aranżacji wnętrza pod własne potrzeby
Dostępne warianty:
Obejmuje wykonanie pełnej konstrukcji domu w technologii stalowej wraz z zabezpieczeniem budynku przed wpływem warunków atmosferycznych.
W zakres wchodzi:
- konstrukcja nośna wykonana z profili stalowych, zgodna z projektem,
- fundamenty wraz z izolacją,
- ściany zewnętrzne z wypełnieniem izolacyjnym, przygotowane do dalszych prac wykończeniowych,
- dach z pełnym pokryciem i obróbkami blacharskimi,
- zamontowana stolarka okienna i drzwiowa zewnętrzna,
- rynny i system odprowadzania wody deszczowej.
Dom w tym standardzie jest zamknięty i zabezpieczony — gotowy do dalszych prac wewnętrznych.
To w pełni przygotowany dom do etapu prac wykończeniowych, z wykonanymi instalacjami i ociepleniem.
W zakres wchodzi:
- wszystkie elementy stanu surowego zamkniętego,
- kompletna izolacja termiczna ścian i dachu,
- instalacje: elektryczna, wodno-kanalizacyjna, grzewcza (wraz z ogrzewaniem podłogowym w pomieszczeniach mieszkalnych),
- tynki wewnętrzne lub płyty g-k na ścianach, przygotowane do malowania,
- wylewki podłogowe,
- elewacja zewnętrzna wykończona zgodnie z projektem,
- przygotowanie pod montaż osprzętu i białego montażu.
W tym standardzie dom jest gotowy do indywidualnego wykończenia przez inwestora.
Kompletnie wykończony dom, gotowy do zamieszkania w dniu odbioru.
W zakres wchodzi:
- wszystkie elementy stanu deweloperskiego,
- malowanie ścian i sufitów,
- ułożenie podłóg w pomieszczeniach (panele, gres, płytki lub inne materiały zgodnie z ustaleniami),
- montaż drzwi wewnętrznych,
- pełny biały montaż w łazienkach i kuchni (armatura, ceramika, wyposażenie),
- montaż opraw oświetleniowych,
- wykończenie i wyposażenie kuchni (meble, sprzęt AGD — w zależności od ustaleń),
- elementy dekoracyjne i wykończeniowe zgodne z projektem lub ustaleniami z inwestorem.
Dom w standardzie pod klucz to rozwiązanie dla osób, które chcą od razu zamieszkać, bez dodatkowych prac wykończeniowych.
Oferujemy kompleksowe wsparcie:
1
Dobór idealnego projektu domu
Pomagamy znaleźć projekt dopasowany do Twoich potrzeb i oczekiwań.
1
2
Wsparcie w wyborze działki pod inwestycję
Doradzamy przy wyborze odpowiedniej lokalizacji, uwzględniając wszystkie kluczowe aspekty.
3
Budowa domu pod klucz
Realizujemy inwestycje od fundamentów aż po wykończenie, oddając gotowy dom do zamieszkania.
3





